4万块钱能装修成啥样(4万到万块钱能装修吗)
4万块钱能装修成啥样(4万到万块钱能装修吗)
买房装修都是大事,攒了好几年的钱买房,装修其实也不太想简装,也想装个自己喜欢的风格,但是现在费用太高了,小小的房子动辄就十好几万装修费,就跟买房子似的压力大。有了自己的房子更是迫不及待想装完住新房,装修整个都老婆全程负责,选择半包,主材都是自己买的,墙面更是只刮大白,全屋硬装完工就4万块,上齐家具效果也很赞,装完一个月就搬家了,温居的时候同事和朋友个个都夸好看,有品位,心里颇有成就感啊,晒晒!

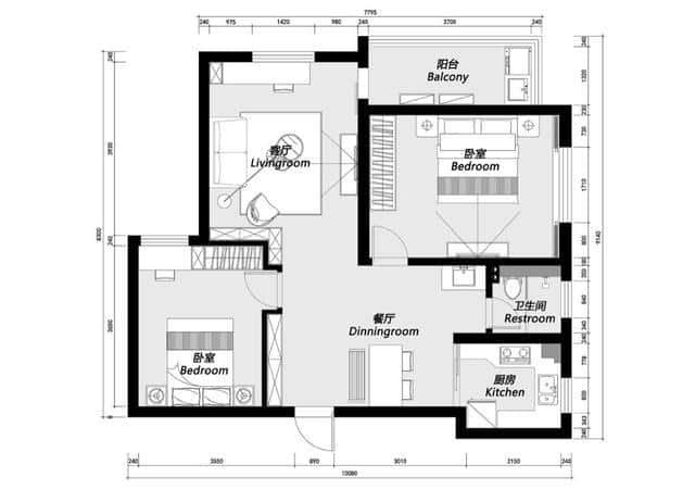
先发个平面布局,房子不大,就一套90㎡的两居,装修的格局没有动,墙体也没有改变,第一是不想太麻烦,第二则是省钱,毕竟砸墙砌墙都是要花银子的。

进门开是就是四白落地的墙面,没有刷乳胶漆,墙面都是刮的大白墙,没有油漆的味道,比较环保。玄关和餐厅是一体的,摆上简单的餐桌椅,看上去空间还挺宽敞。

玄关本身就带着嵌入式的鞋帽柜空间,定制橱柜的时候一起定制了这套鞋柜,价格实惠,效果也不错,鞋子也能装不少。

餐厨也是一起的,格局很方便,卫生间直接就是干湿分离的格局,洗漱台直接在外面,和餐厅都挨着,平常洗手洗漱都很方便。

厨房是真的巴掌大,利用空间打造异形的整体橱柜,也是为了增加厨房的储物空间,留出一个角落摆下冰箱,面积虽然小,但是也能收拾得井井有条。

从客厅看过去整个玄关,侧面的那组柜子太实用了,双面的转角柜,双面储物,价格不高,都是原木木板,整个下来才300多块钱。

电视墙不是做的造型,直接就是剌的线条,竖条纹看上去还挺养眼的,很时尚的格调。

客厅还能当书房用,靠窗摆放一组简易的书桌椅,平常看电视就很少,在这样的大厅里面工作娱乐,都足够有氛围。

阳台是独立的空间,老婆最爱的就是谷仓门,总算是逮着机会用上了,直接在阳台装上一套,打开门之后,里面也是另一套风景,非常清新。

阳台都是封上的,洗衣晾晒不耽误,养花养草也很方便,地面都是铺贴的公园砖,摆上要休闲桌椅,要多惬意有多惬意。

主卧的背景墙贴的湛蓝色墙纸,不是壁纸,直接的墙壁粘贴,纯色的看起来更加有高级感,很雅致,老婆说看到妹妹学校宿舍贴的这种,还挺看,直接用在了家里,才几十块钱,挺好看的。

给孩子的房间布置得和客厅一样环保,四白落地不说,连床都是之前的铁艺架子床,简单大气,没有什么味道,就跟装了很久一样,孩子住着也放心。

卫生间墙地砖都是统一的灰色瓷砖,淋浴区安装一块玻璃隔断当做干湿分离,之前参加家装节活动抽的暗箱式马桶刚好用在家里,省2000多块,超划算!
-
- 岷江的源头在哪里-(岷江的发源地在哪里)
-
2025-06-19 09:10:00
-
- 最大的蜥蜴是什么蜥蜴(巨型蜥蜴位于哪里)
-
2025-06-19 09:07:45
-
- 新车被别人刮了点漆怎么办(小刮蹭千万别补漆)
-
2025-06-19 09:05:29
-
- 天然洗洁精哪个牌子好(洗洁精排名前十)
-
2025-06-19 09:03:14
-
- 离婚后男人心里还有前妻的表现(前妻在男人心里的地位)
-
2025-06-19 09:00:59
-
- 十大巨兽排行榜(传奇十大怪兽)
-
2025-06-18 10:40:15
-
- 消失200多天,范冰冰悄悄复出!这件事要警醒!
-
2025-06-18 10:38:00
-
- 欧洲的传奇女性-为爱情而牺牲的苏格兰女王玛丽·斯图尔特
-
2025-06-18 10:35:46
-
- 华为nova系列机型(华为Nova系列机型盘点回顾)
-
2025-06-18 10:33:31
-
- 朱瞻基是明君还是昏君(朱瞻基历史简介和评价)
-
2025-06-18 10:31:15
-
- 硕士败类张丕林:为自己利益在飞机上放火,飞机坠落后112人遇难
-
2025-06-18 10:29:00
-
- 济南方特东方神画旅游攻略,最新最全路线和游玩顺序都在这里了!
-
2025-06-18 10:26:45
-
- 关于破案类电视剧推荐(15部刑侦破案电视剧排行榜)
-
2025-06-18 10:24:30
-
- 狂野浪子黄立行:与徐静蕾、蔡依林、林熙蕾、侯佩岑的那些事
-
2025-06-18 10:22:15
-
- 杜海涛的爸爸(杜海涛沈梦辰结婚相恋9年都不想结婚)
-
2025-06-18 10:20:00
-
- 24款 创新融合菜,风味十足
-
2025-06-18 10:17:45
-
- 颈椎按摩器十大品牌排行榜:高质量款式推荐
-
2025-06-18 10:15:30
-
- 身高2.36米的鲍喜顺,不顾医生建议冒险生子,如今儿子身高1.69米
-
2025-06-18 10:13:15
-
- 私藏的30个Java自学网站,全部公开!快来看看你知道几个?
-
2025-06-18 10:11:00
-
- 军事实力盘点亚洲篇,朝鲜
-
2025-06-18 10:08:45



许凯妈妈旧照,看到他妈妈年轻时的样子,才知道他为啥这么帅气
丰田推出的倒三轮摩托车,只要1万多,可惜国内没有卖的