水电验收要重点验收什么内容(装修水电验收注意10个项目)
水电验收要重点验收什么内容(装修水电验收注意10个项目)
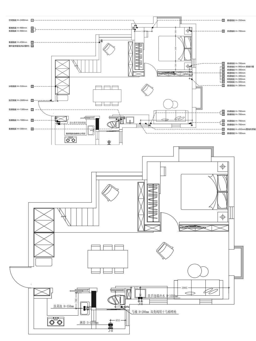
水电验收注意10个要点,装修小白必备的干货!
水电是装修里面的重中之重,因为是隐蔽工程,一旦埋下去,入住后发现问题真是想哭都没有眼泪。
所以家里在装修,水电一定要做好。那么如果水电做完了之后,作为外行人该如何验收呢?
今天给你总结分享了我家装修的时候,水电验收的心得。

水电之前一定提前定位,并且和设计师反复确认有没有遗漏,让水电师傅严格按照设计师图纸来施工,这样能减少后期增项。
我家是复式楼,对比平层改造难度较大。水电图纸完全是按照设计师定好的来走。

1、线管、水管

强弱电建议分两种线管,方便区分和维修,同时强弱电交接处,建议用锡纸隔离,不然强弱电之间会有电流干扰。
如果弱电使用的是超六类的线,里面自带锡纸抗干扰,需要买7类水晶头才能接上。
水管分单双层和冷热水管,水管和强弱电交接处不需要锡纸隔离。
2、管之间预留空隙

线管之间要预留2-3cm间隔,减少电流之间互相干扰。同时要用管码把线管固定,这样后期填水泥砂浆不会鼓起,减少地面空鼓情况。
3、卫生间管道
卫生间建议要做二次排水,并且要做存水弯,防止水管内气体进入室内,像卫生间有臭味很可能就是没做存水弯的原因了。
4、布线规范
电线要走活线工艺,先开槽,槽直了,然后排管,再穿线,尽量走大弯,后面抽拉线不会变死线。
5、电线保护
要电工把每根裸露在外的电线要包裹好胶带,防止触电危险。
6、不走横槽
特别是承重墙,不建议走横槽,特别是里面带有主钢筋很危险。
7、水电交叉

水电走顶时或者水电交叉的地方,水管要在电线管下方,这样即使爆水管,电线也不会一直浸泡在水里较为安全。
8、分区域走线管
从总电箱出来的线,建议先集中在走廊,然后分区域进入各个空间。后期即使出现问题,在走廊就可以检修,减少损坏。
9、黄腊管

线管穿过承重墙、薄的墙体等地方,建议用黄腊管,这样能减少对墙体的破坏,更加安全。
10、水电拍照
水电完工后,一定要各个空间拍照留存,防止后期因为要打孔不小心打到管道。
以上是我总结的水电验收要点,找专业靠谱的水电工很重要,如果担心他们没做好,建议你找第三方监理验收更好。
-
- 你跳我也跳的英文(你跳我也跳大班教案)
-
2025-11-19 15:35:31
-
- 什么叫断背,什么叫断背?
-
2025-11-19 15:33:16
-
- 婆媳闹矛盾时,婆媳闹矛盾,如何化解纷争?
-
2025-11-19 15:31:01
-
- 莲子心怎么吃不会苦?莲子心怎么泡水喝
-
2025-11-19 15:28:46
-
- 当“泰迪犬”犯错后,不管你有多生气,这5个地方都不能打
-
2025-11-19 15:26:31
-
- 山竹要买硬的还是软的 山竹怎么看新不新鲜
-
2025-11-19 15:24:16
-
- 染发时弄到脸上的黑怎么洗掉(皮肤沾上染发膏怎么处理)
-
2025-11-19 15:22:01
-
- 排骨汤怎样冷藏,排骨汤放冷藏还是冷冻
-
2025-11-19 15:19:46
-
- 妇女节如何给女朋友发红包 妇女节发红包的讲究
-
2025-11-19 15:17:31
-
- 女生暗恋一个人不理你的表现(女人暗恋你的八种表现)
-
2025-11-19 15:15:16
-
- 黄哈密瓜好吃还是青哈密瓜好吃?黄哈密瓜和绿哈密瓜的区别
-
2025-11-19 15:13:01
-
- 带辰的男孩名字(带辰的男孩名字两个字)
-
2025-11-19 15:10:46
-
- 提前还了房贷让我后悔不已(不建议提前还房贷的原因)
-
2025-11-19 15:08:31
-
- 暖味关系如何培养,暖心关系方法和小窍门
-
2025-11-19 15:06:16
-
- 富士达自行车怎么样(富士达自行车价格表)
-
2025-11-19 15:04:01
-
- 大象有多重(大象有多重呢大象到底有多重呢仿写句子)
-
2025-11-19 15:01:46
-
- 联想v450配置参数(联想v450拆机教程)
-
2025-11-19 14:59:31
-
- 追女孩时说的情话,戒不掉的你忘不掉的情
-
2025-11-18 23:53:04
-
- 中华田园犬多少钱(中华田园犬好养吗)
-
2025-11-18 23:50:49
-
- 说说-觉得自己年纪大了的说说
-
2025-11-18 23:48:34



“娘娘”孙俪公布离婚,原因邓超出轨家暴?她晒甜蜜合照否认
许凯妈妈旧照,看到他妈妈年轻时的样子,才知道他为啥这么帅气